Votre maison clé en main à Magny-les-Hameaux (78) pour 550 000 € n°4975722
Découvrez cette offre maison + terrain clé en main située à Magny-les-Hameaux dans le 78 pour la réalisation de votre projet de construction.
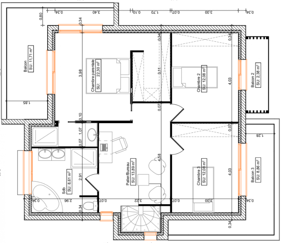
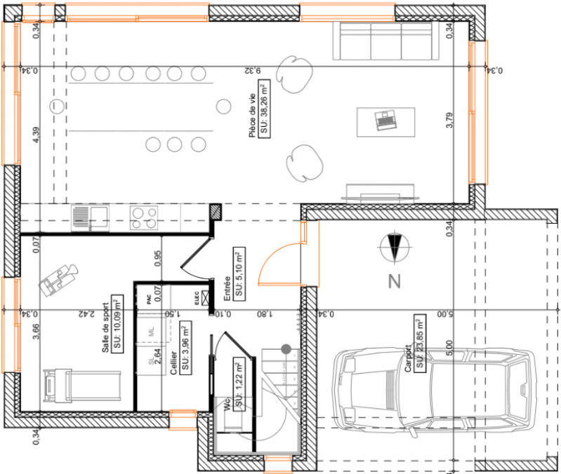
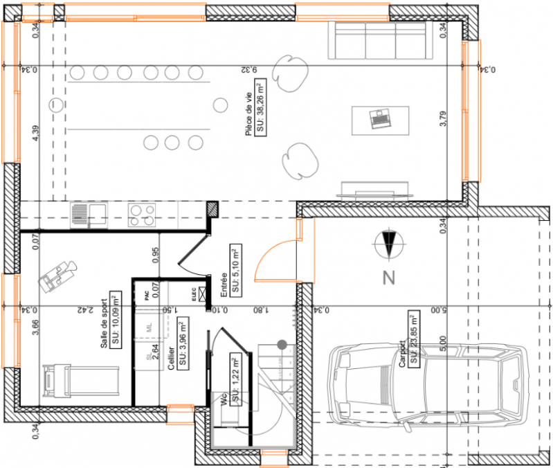
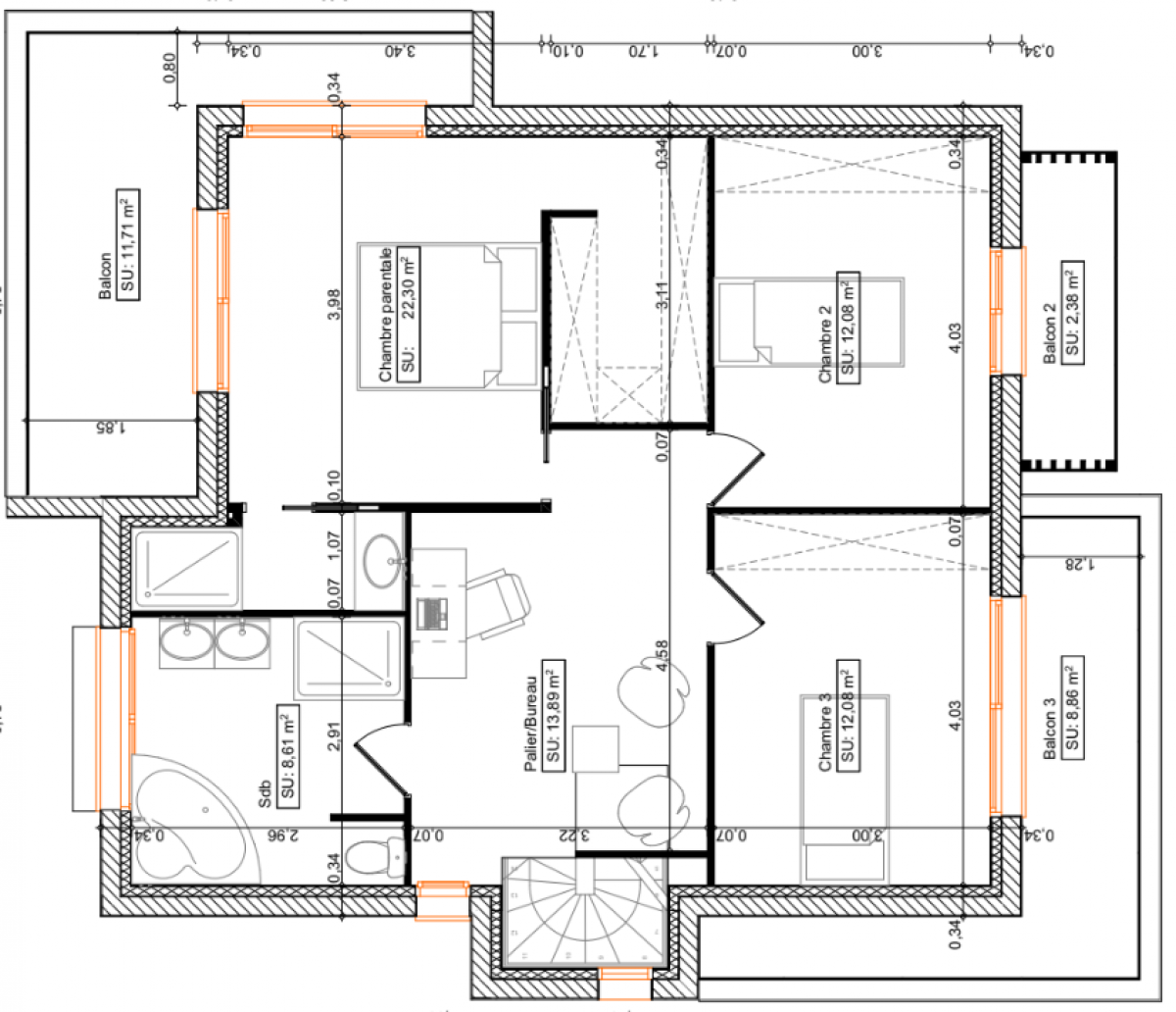
Cette offre tout-en-un maison clé en main sur un terrain de 500 m² située à Magny-les-Hameaux (78114) pour 550 000 € vous est proposée par notre agence Maisons.com LA VILLE DU BOIS.
Offre maison et terrain tout inclus à Magny-les-Hameaux :
Contactez Antoine Tanios 06/20/94/86/76
Située a proximité du centre ville retrouvez un beau terrain plat pour y construire le projet de vos rêves.
Faite vite !!! Prix hors frais de notaire et branchements .
Constructeur de maisons en bio brique depuis 35 ans, nombreux modèles entièrement personnalisables, de 3 à 5 chambres allant du style traditionnel au contemporain. Prestations haut de gamme, visibles à l'agence de la ville du bois. Visuel non contractuel . Pour une étude gratuite et personnalisée de la faisabilité de votre projet , n’hésitez pas à me contacter
A partir des caractéristiques de cette maison + terrain clé en main située à Magny-les-Hameaux dans le 78, découvrez d'autres offres susceptibles de vous intéresser.
Vous souhaitez de plus amples informations concernant l'offre maison neuve à Magny-les-Hameaux dans les Yvelines ?
N'attendez plus et faites-nous part de votre demande !
Demande d'informations, devis gratuit, rendez-vous avec un expert Maisons.com ? Faites-nous part de votre demande !
Trouver l'agence la plus proche de chez vous :
Trouvez votre offre clé en main et réalisez votre maison dans les Yvelines avec Maisons.com ou consultez nos terrains à bâtir dans le 78 !
A travers votre projet de construction entièrement géré de A à Z par nos experts de l'habitat, vous devenez propriétaire avec les avantages et les garanties d'une maison neuve !
|
Mes offres clés en main
|
||
|---|---|---|
| Aucune sélection |
|
Mes terrains
|
||
|---|---|---|
| Aucune sélection |
|
Mes plans maison
|
||
|---|---|---|
| Aucune sélection |
