
Votre maison clé en main à Mitry-Mory (77) pour 349 500 € n°4892002
Découvrez cette offre maison + terrain clé en main située à Mitry-Mory dans le 77 pour la réalisation de votre projet de construction.
Cette offre tout-en-un maison clé en main sur un terrain de 290 m² située à Mitry-Mory (77290) pour 349 500 € vous est proposée par notre agence Maisons.com MAREUIL-LES-MEAUX.
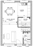
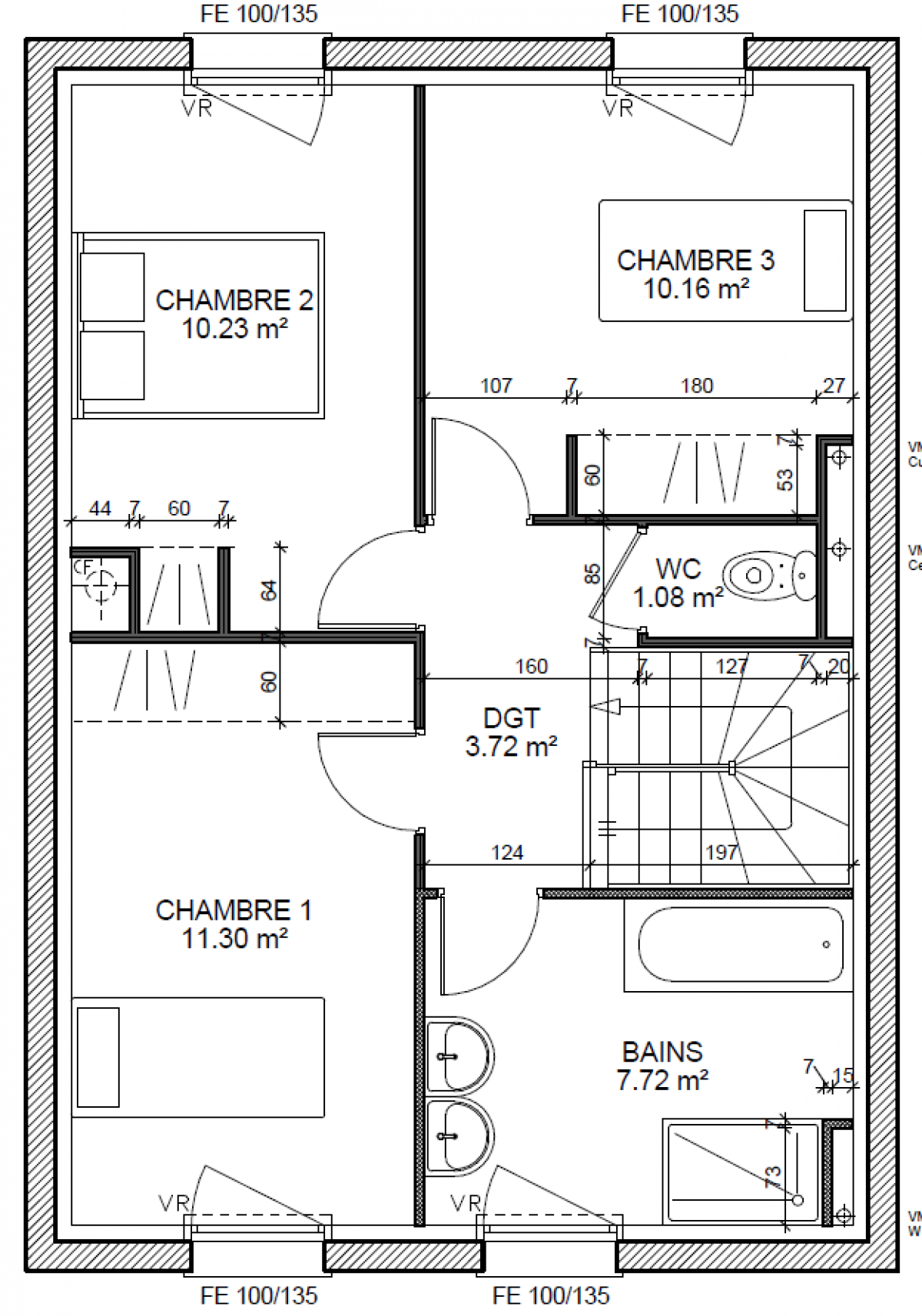
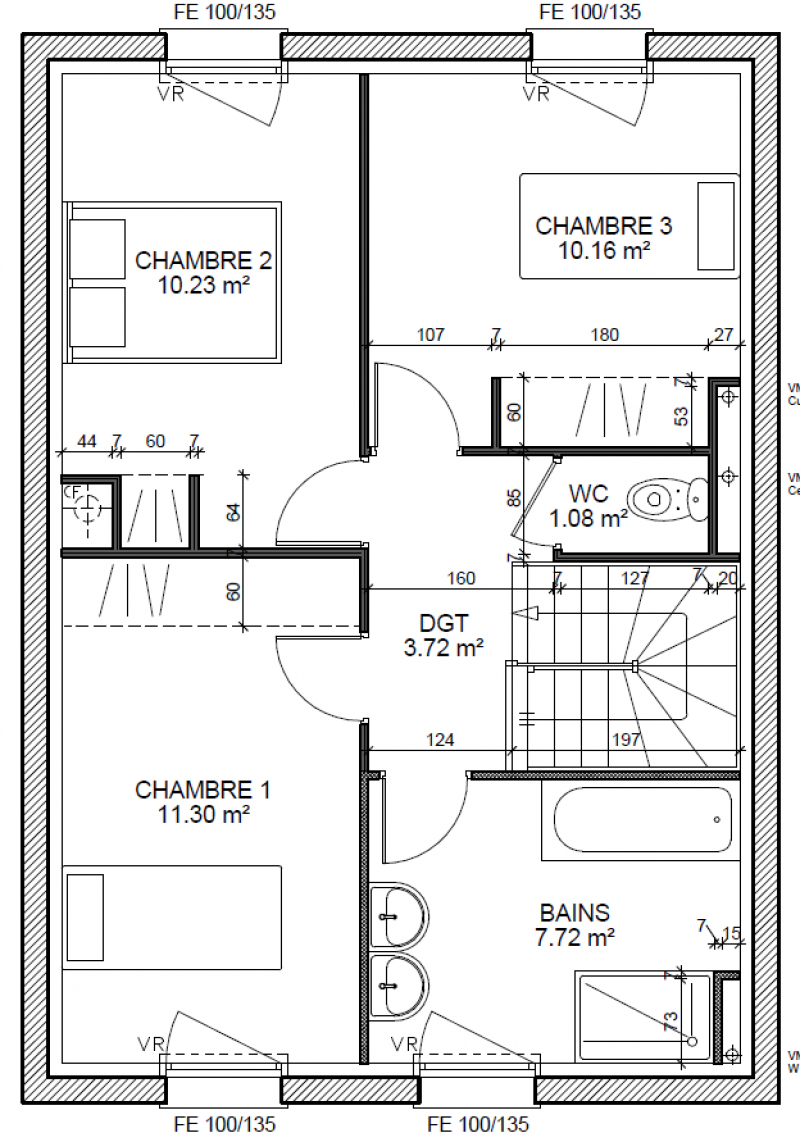
Offre maison et terrain tout inclus à Mitry-Mory :
Contact : Sébastien Tazouaout – O6 79 26 63 23 | LesMaisons.com – Groupe BDL
Terrain sans vis à vis, extrêmement bien exposé. Mitry Bourg.
Construction clés en mains comprenant : Revêtements de sols - Pré-peinture blanche - 7000€ de cuisine - Appareillage sanitaire - terrain cloturé
Accession à la propriété facilitée grâce au Prêt à Taux Zéro. Terrain bien exposé, secteur calme, commune éligible. Maison sur mesure, normes RE2020, prestations fiables. Suivi de projet assuré du premier rendez-vous à la remise des clés. Étude gratuite disponible immédiatement.
Constructeur de maisons en Bio Brique depuis 35 ans, nos 150 modèles sont entièrement personnalisables, de 3 à 5 chambres, allant du style traditionnel au contemporain. Nos maisons sont équipées de prestations haut de gamme de base, visibles à l'agence de Mareuil-lès-Meaux. Visuel non contractuel, hors frais de notaire et frais annexes. Étude gratuite et personnalisée en agence ou à domicile.
A partir des caractéristiques de cette maison + terrain clé en main située à Mitry-Mory dans le 77, découvrez d'autres offres susceptibles de vous intéresser.
Vous souhaitez de plus amples informations concernant l'offre maison neuve à Mitry-Mory dans la Seine-Et-Marne ?
N'attendez plus et faites-nous part de votre demande !
Demande d'informations, devis gratuit, rendez-vous avec un expert Maisons.com ? Faites-nous part de votre demande !
Trouver l'agence la plus proche de chez vous :
Trouvez votre offre clé en main et réalisez votre maison dans la Seine-Et-Marne avec Maisons.com ou consultez nos terrains à bâtir dans le 77 !
A travers votre projet de construction entièrement géré de A à Z par nos experts de l'habitat, vous devenez propriétaire avec les avantages et les garanties d'une maison neuve !
Mes offres clés en main
|
||
---|---|---|
Aucune sélection |
Mes terrains
|
||
---|---|---|
Aucune sélection |
Mes plans maison
|
||
---|---|---|
Aucune sélection |