Votre maison clé en main à Saintry-sur-Seine (91) pour 349 000 € n°5109211
Découvrez cette offre maison + terrain clé en main située à Saintry-sur-Seine dans le 91 pour la réalisation de votre projet de construction.
Cette offre tout-en-un maison clé en main sur un terrain de 518 m² située à Saintry-sur-Seine (91250) pour 349 000 € vous est proposée par notre agence Maisons.com MELUN.
Offre maison et terrain tout inclus à Saintry-sur-Seine :
Contacter Stéphane Maraine 06/24/68/04/35
Superbe terrain à bâtir sur le secteur de Saintry sur seine ce magnifique terrain extrêmement rare de 518.m2 vous attends .toutes les commodités sur place.
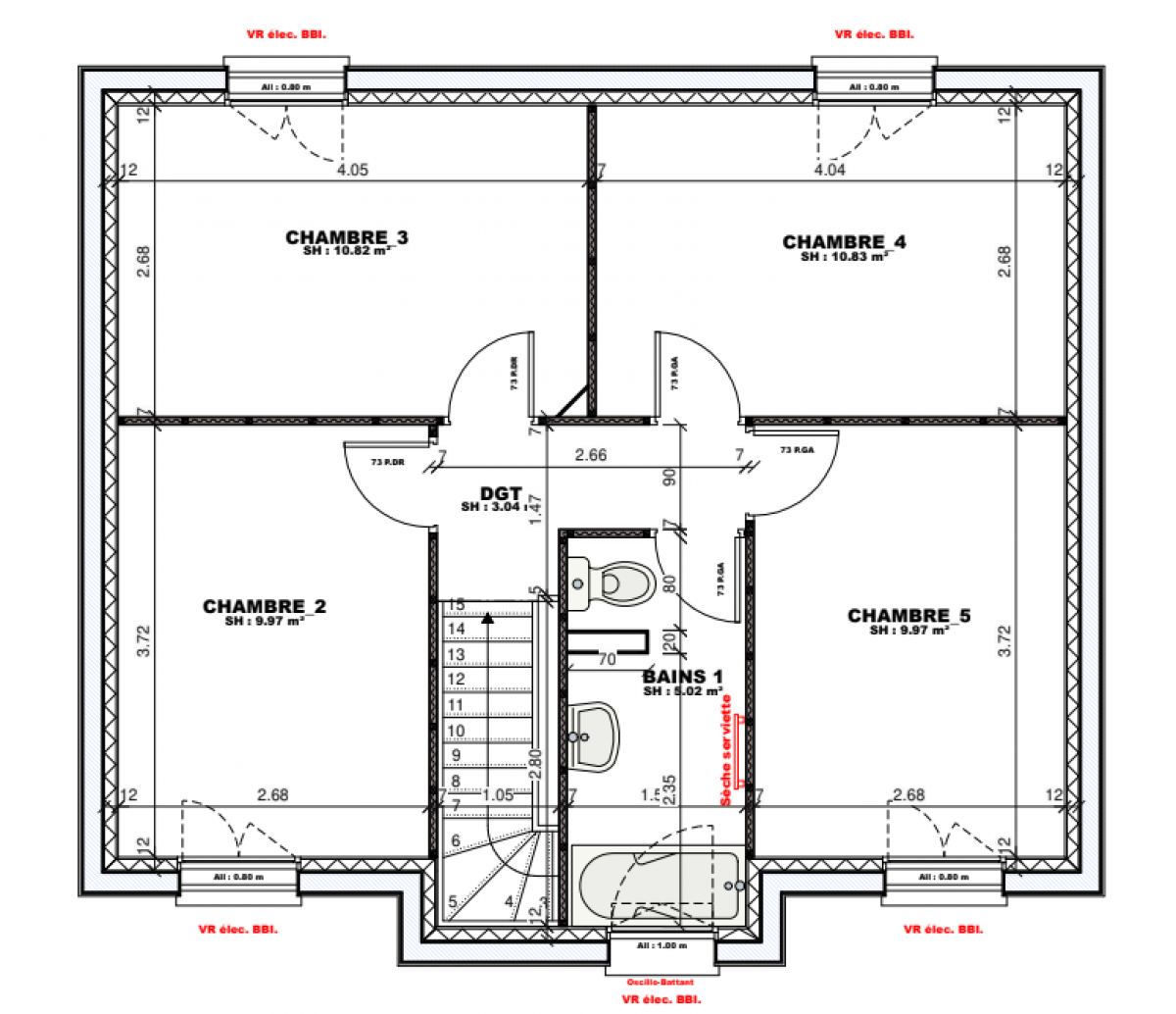
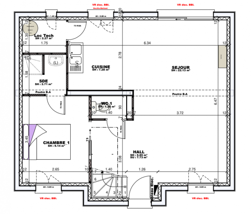
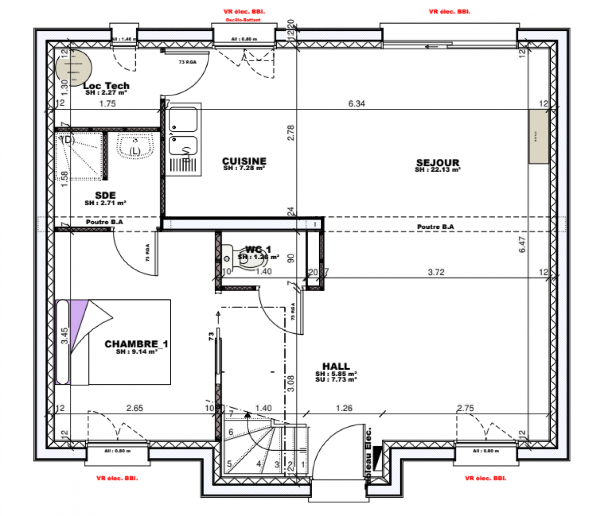
Votre projet sur mesure sera réaliser par nos soins de A à Z dite moi la surface ,les équipements voulu, le nombre de chambres de salle de bain et je vous réalise votre projet. Je vous propose un exemple de maison à vous de choisir le votre.
Les Maisons.com constructeur spécialisé dans les constructions de maisons individuels en bio brique ainsi que les maisons passives depuis plus de 30 ans, un choix de plus de 150 modèles entièrement personnalisables.
Le prix comprend le terrain et la maison hors frais annexes
Les maisons.com groupe BDL
A partir des caractéristiques de cette maison + terrain clé en main située à Saintry-sur-Seine dans le 91, découvrez d'autres offres susceptibles de vous intéresser.
Vous souhaitez de plus amples informations concernant l'offre maison neuve à Saintry-sur-Seine dans l'Essonne ?
N'attendez plus et faites-nous part de votre demande !
Demande d'informations, devis gratuit, rendez-vous avec un expert Maisons.com ? Faites-nous part de votre demande !
Trouver l'agence la plus proche de chez vous :
Trouvez votre offre clé en main et réalisez votre maison dans l'Essonne avec Maisons.com ou consultez nos terrains à bâtir dans le 91 !
A travers votre projet de construction entièrement géré de A à Z par nos experts de l'habitat, vous devenez propriétaire avec les avantages et les garanties d'une maison neuve !
|
Mes offres clés en main
|
||
|---|---|---|
| Aucune sélection |
|
Mes terrains
|
||
|---|---|---|
| Aucune sélection |
|
Mes plans maison
|
||
|---|---|---|
| Aucune sélection |
