Votre maison clé en main à Saintry-sur-Seine (91) pour 349 000 € n°5151706
Découvrez cette offre maison + terrain clé en main située à Saintry-sur-Seine dans le 91 pour la réalisation de votre projet de construction.
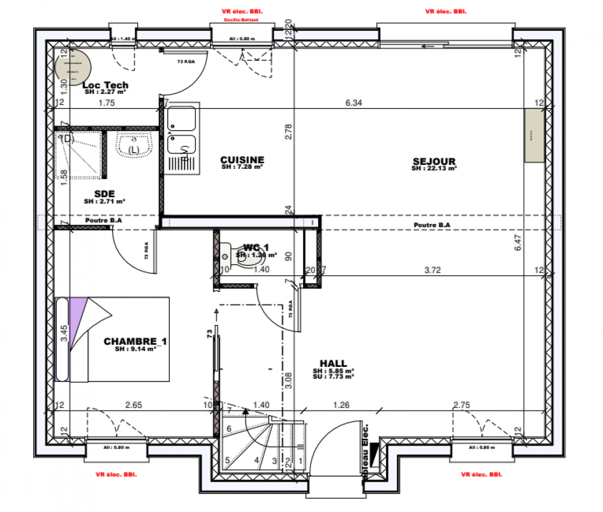
Cette offre tout-en-un maison clé en main sur un terrain de 518 m² située à Saintry-sur-Seine (91250) pour 349 000 € vous est proposée par notre agence Maisons.com MELUN.
Offre maison et terrain tout inclus à Saintry-sur-Seine :
Renseignements : Stéphane MARAINE O6.24.68.04.35
Réalisez votre projet de construction sur un terrain idéalement situé à Saintry-sur-Seine. Cette commune prisée en bordure de Seine offre un cadre de vie calme et verdoyant, avec ses écoles, ses petits commerces de proximité et ses infrastructures sportives. Très bien située, elle bénéficie d'un accès rapide à la Francilienne (N104) et à l'autoroute A6, tout en profitant de la proximité des gares RER D de Corbeil-Essonnes ou de Saint-Pierre-du-Perray pour rejoindre Paris.
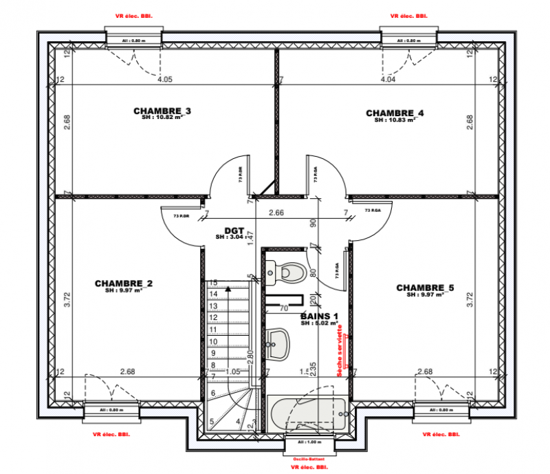
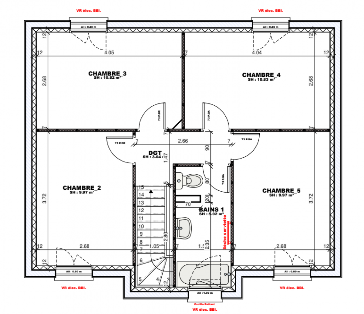
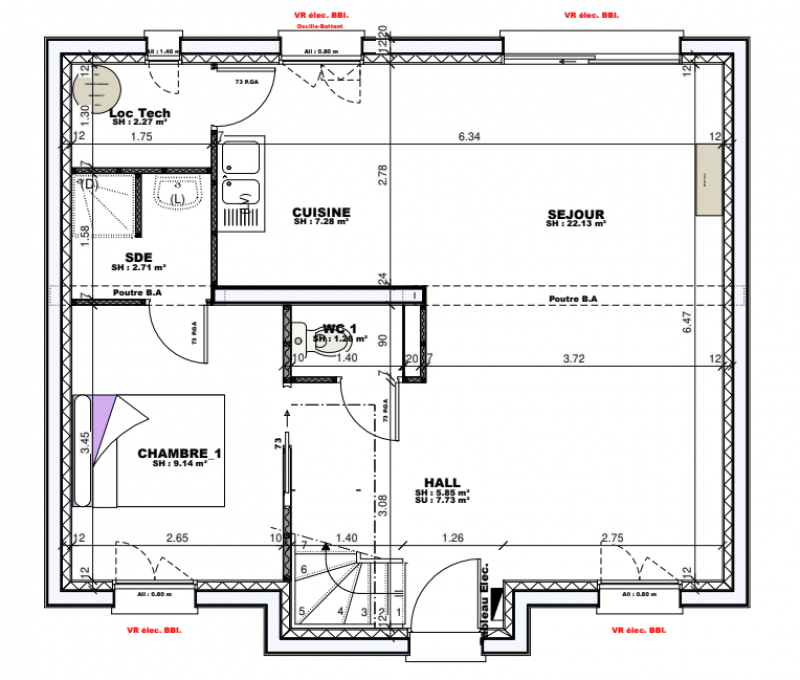
Constructeur de maisons en Bio brique depuis 37 ans, nos 150 modèles sont entièrement personnalisables, de 3 à 5 chambres, allant du style traditionnel au contemporain. Nos maisons sont équipées de prestations haut de gamme de base, visibles a l 'agence de MELUN. Étude gratuite et personnalisée en agence ou à domicile.
Terrain proposé par notre partenaire foncier, sous réserve de disponibilité. Prix hors frais de notaire, raccordements, branchements, taxes, aménagements extérieurs. Visuels non contractuels. Construction réalisée dans le cadre d’un Contrat de Construction de Maison Individuelle (CCMI – loi du 19/12/1990).
A partir des caractéristiques de cette maison + terrain clé en main située à Saintry-sur-Seine dans le 91, découvrez d'autres offres susceptibles de vous intéresser.
Vous souhaitez de plus amples informations concernant l'offre maison neuve à Saintry-sur-Seine dans l'Essonne ?
N'attendez plus et faites-nous part de votre demande !
Demande d'informations, devis gratuit, rendez-vous avec un expert Maisons.com ? Faites-nous part de votre demande !
Trouver l'agence la plus proche de chez vous :
Trouvez votre offre clé en main et réalisez votre maison dans l'Essonne avec Maisons.com ou consultez nos terrains à bâtir dans le 91 !
A travers votre projet de construction entièrement géré de A à Z par nos experts de l'habitat, vous devenez propriétaire avec les avantages et les garanties d'une maison neuve !
|
Mes offres clés en main
|
||
|---|---|---|
| Aucune sélection |
|
Mes terrains
|
||
|---|---|---|
| Aucune sélection |
|
Mes plans maison
|
||
|---|---|---|
| Aucune sélection |
